Amberg Engineering - Untertagbau - Spezialtiefbau - Tunnelbau - Ingenieurbau - Metro - Bahn - Strasse - Versorgungstunnel - Unterirdische Räume - Bauwerkserhaltung - Planung - Design - Statik - Projektmanagement - Geotechnik - BIM - Aerodynamik - Lüftung - Risiko Sicherheitsmanagement - Referenzen - Projekte - Gotthard Basistunnel - Brenner Basistunnel - Albula Tunnel - Metro Bukarest - Flughafen Montreal - Chip Fabrik - Versuchsstollen - Hochgeschwindigkeitszug - Versorgungseinrichtungen - Nuklearer Abfall - Amberg Engineering - Schweiz - Management Team - Marktverantwortliche - Nachhaltigkeit - Fachverbände - Karriere - Jobs - News - Events - Company Engineering - Underground construction - Specialist deep construction - Tunneling - Civil engineering - Metro - Railway - Road - Utility tunnel - Subterranean spaces - Structural maintenance - Planning - Design - Statics - Project management - Geotechnics - BIM - Aerodynamics - Ventilation - Risk & Safety Management - References - Projects - Gotthard Base Tunnel - Brenner Base Tunnel - Albula Tunnel - Bucharest Metro - Montreal Airport - Underground chip factory - Test gallery - High-speed train - Utility facilities - Nuclear waste - Amberg Engineering - Switzerland - Management Team - Market Managers - Sustainability - Associations - Careers - Jobs - News - Events
Porto, Portugal

Metro Porto

 
 
2018
START DES PROJEKTS
1860
ZUG-DEPOT
130Mio. EUR
GESAMTKOSTEN
3,2km
TUNNELLÄNGE

Seit 2002 hat die zweitgrösste Stadt Portugals ihr eigenes Metro-System. In der historischen Innenstadt verläuft das Schienennetz unterirdisch, in den Vororten oberirdisch. 

Die Stadt verlängert die Linie D um 3,2 Kilometer von Santo Ovidio bis zur neuen Endstation in Vila d'Este. Entlang der Linie werden drei neue Stationen sowie ein Depot für 30 Züge gebaut.

Amberg ist für die Planung des Projekts sowie die Lüftung und ergänzende Arbeiten verantwortlich. Dazu gehört auch eine Studie zur Umweltverträglichkeit des ganzen Baus.

Herausforderungen des Projekts sind die urbane Umgebung im dicht besiedelten Stadtgebiet und die Integration in die bereits existierenden Metro-Linien. Auch die engen Platzverhältnisse für die Cut & Cover-Sektionen des Projekts erfordern ein hohes Mass an Präzision und Know-how. Zu guter Letzt ist die Platzierung der Lüftungsschächte sorgfältig auszuwählen.

Dank der grossen Expertise von Amberg konnte für jede Herausforderung die passende technische Lösung gefunden werden. Gerne beraten wir Sie für Ihr Metro-Projekt.

Für weitere Informationen zu diesem Projekt:

Kontaktieren Sie uns

Bildergalerie

Amberg Engineering - Untertagbau - Spezialtiefbau - Tunnelbau - Ingenieurbau - Metro - Bahn - Strasse - Versorgungstunnel - Unterirdische Räume - Bauwerkserhaltung - Planung - Design - Statik - Projektmanagement - Geotechnik - BIM - Aerodynamik - Lüftung - Risiko Sicherheitsmanagement - Referenzen - Projekte - Gotthard Basistunnel - Brenner Basistunnel - Albula Tunnel - Metro Bukarest - Flughafen Montreal - Chip Fabrik - Versuchsstollen - Hochgeschwindigkeitszug - Versorgungseinrichtungen - Nuklearer Abfall - Amberg Engineering - Schweiz - Management Team - Marktverantwortliche - Nachhaltigkeit - Fachverbände - Karriere - Jobs - News - Events - Company Engineering - Underground construction - Specialist deep construction - Tunneling - Civil engineering - Metro - Railway - Road - Utility tunnel - Subterranean spaces - Structural maintenance - Planning - Design - Statics - Project management - Geotechnics - BIM - Aerodynamics - Ventilation - Risk & Safety Management - References - Projects - Gotthard Base Tunnel - Brenner Base Tunnel - Albula Tunnel - Bucharest Metro - Montreal Airport - Underground chip factory - Test gallery - High-speed train - Utility facilities - Nuclear waste - Amberg Engineering - Switzerland - Management Team - Market Managers - Sustainability - Associations - Careers - Jobs - News - Events
Die Station Santo Ovídio der Metro do Porto. Quelle: Ernstkers, Wikimedia Commons
Amberg Engineering - Untertagbau - Spezialtiefbau - Tunnelbau - Ingenieurbau - Metro - Bahn - Strasse - Versorgungstunnel - Unterirdische Räume - Bauwerkserhaltung - Planung - Design - Statik - Projektmanagement - Geotechnik - BIM - Aerodynamik - Lüftung - Risiko Sicherheitsmanagement - Referenzen - Projekte - Gotthard Basistunnel - Brenner Basistunnel - Albula Tunnel - Metro Bukarest - Flughafen Montreal - Chip Fabrik - Versuchsstollen - Hochgeschwindigkeitszug - Versorgungseinrichtungen - Nuklearer Abfall - Amberg Engineering - Schweiz - Management Team - Marktverantwortliche - Nachhaltigkeit - Fachverbände - Karriere - Jobs - News - Events - Company Engineering - Underground construction - Specialist deep construction - Tunneling - Civil engineering - Metro - Railway - Road - Utility tunnel - Subterranean spaces - Structural maintenance - Planning - Design - Statics - Project management - Geotechnics - BIM - Aerodynamics - Ventilation - Risk & Safety Management - References - Projects - Gotthard Base Tunnel - Brenner Base Tunnel - Albula Tunnel - Bucharest Metro - Montreal Airport - Underground chip factory - Test gallery - High-speed train - Utility facilities - Nuclear waste - Amberg Engineering - Switzerland - Management Team - Market Managers - Sustainability - Associations - Careers - Jobs - News - Events
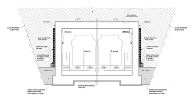
Der Tunnel im Querschnitt.
Amberg Engineering - Untertagbau - Spezialtiefbau - Tunnelbau - Ingenieurbau - Metro - Bahn - Strasse - Versorgungstunnel - Unterirdische Räume - Bauwerkserhaltung - Planung - Design - Statik - Projektmanagement - Geotechnik - BIM - Aerodynamik - Lüftung - Risiko Sicherheitsmanagement - Referenzen - Projekte - Gotthard Basistunnel - Brenner Basistunnel - Albula Tunnel - Metro Bukarest - Flughafen Montreal - Chip Fabrik - Versuchsstollen - Hochgeschwindigkeitszug - Versorgungseinrichtungen - Nuklearer Abfall - Amberg Engineering - Schweiz - Management Team - Marktverantwortliche - Nachhaltigkeit - Fachverbände - Karriere - Jobs - News - Events - Company Engineering - Underground construction - Specialist deep construction - Tunneling - Civil engineering - Metro - Railway - Road - Utility tunnel - Subterranean spaces - Structural maintenance - Planning - Design - Statics - Project management - Geotechnics - BIM - Aerodynamics - Ventilation - Risk & Safety Management - References - Projects - Gotthard Base Tunnel - Brenner Base Tunnel - Albula Tunnel - Bucharest Metro - Montreal Airport - Underground chip factory - Test gallery - High-speed train - Utility facilities - Nuclear waste - Amberg Engineering - Switzerland - Management Team - Market Managers - Sustainability - Associations - Careers - Jobs - News - Events
Modell der als Viadukt gebauten Kurve
Amberg Engineering - Untertagbau - Spezialtiefbau - Tunnelbau - Ingenieurbau - Metro - Bahn - Strasse - Versorgungstunnel - Unterirdische Räume - Bauwerkserhaltung - Planung - Design - Statik - Projektmanagement - Geotechnik - BIM - Aerodynamik - Lüftung - Risiko Sicherheitsmanagement - Referenzen - Projekte - Gotthard Basistunnel - Brenner Basistunnel - Albula Tunnel - Metro Bukarest - Flughafen Montreal - Chip Fabrik - Versuchsstollen - Hochgeschwindigkeitszug - Versorgungseinrichtungen - Nuklearer Abfall - Amberg Engineering - Schweiz - Management Team - Marktverantwortliche - Nachhaltigkeit - Fachverbände - Karriere - Jobs - News - Events - Company Engineering - Underground construction - Specialist deep construction - Tunneling - Civil engineering - Metro - Railway - Road - Utility tunnel - Subterranean spaces - Structural maintenance - Planning - Design - Statics - Project management - Geotechnics - BIM - Aerodynamics - Ventilation - Risk & Safety Management - References - Projects - Gotthard Base Tunnel - Brenner Base Tunnel - Albula Tunnel - Bucharest Metro - Montreal Airport - Underground chip factory - Test gallery - High-speed train - Utility facilities - Nuclear waste - Amberg Engineering - Switzerland - Management Team - Market Managers - Sustainability - Associations - Careers - Jobs - News - Events
Der Cut & Cover-Tunnelabschnitt ist 960 Meter lang